3月14日より2週限定で完成見学会を行います☆
開放的なLDKで、快適な暮らしを考えた注文住宅
開催概要
| 開催日時 | 令和8年3月14日(土)・15日(日)・20日(金)・21日(土)・22日(日) AM10:00~PM5:00 |
|---|---|
| 開催場所 | 筑後市大字常用126-7 |
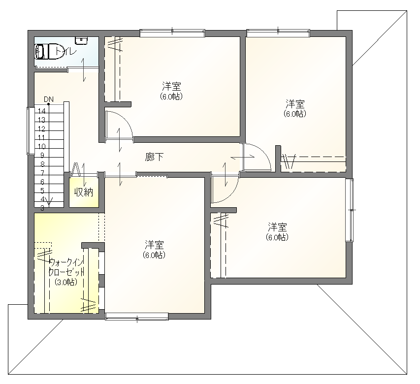
筑後市常用で3月14日・15日と3月20日・21日・22日の2週に渡って2階建て住宅完成見学会を開催します!
重厚感のある外観で、シューズクローク・フャミリークローゼット・大容量のパントリーなど、
オーナー様のこだわりがたくさん詰まった素敵なお家になっております。
ぜひこの機会に注文住宅の魅力を現地でご覧ください!
「大手メーカーで建築を検討していたけれど、価格が高く規格住宅を勧められた」
「検討中の会社さんがあるけれど、なかなか良い間取りが提案してもらえない」
というようなお悩みを、持っておられるお客様も大歓迎です。
駐車場あり:お客様用駐車場があります。
初心者向け:「何からすればいいの」「まだ先なんだけど」などという方も大歓迎。
お子様歓迎:キッズコーナー、お菓子ご用意しています。
予約特典あり:初めてのご来場で、前日18時までにWEB予約をしていただきますと、QUOカードプレゼント
当日ご予約される場合、場所が分からない等ございましたら、お気軽にお問い合わせください。
【当日会場に直接繋がる専用ダイヤル】
TEL:090-1162-8379
【その他お問い合わせ】
TEL:0120-74-0605
密にならないよう事前のご予約をお願いしています。
同じ時間帯に複数のご予約が入った場合は、
時間帯を変更していただくようご連絡する場合がございます。
予めご了承ください。
ご来場予定日の前日までにご予約をお願いいたします。
完成見学会予約は☆下記フォームからお申込みください。☆
会場地図
イベント申込フォーム





