【5人家族5LDK】広い洗濯室とシューズクロークのある住みごこちのいい家
間取りポイント
外で洗濯物を干さないお宅に合わせて広い洗濯室を設計しました。洗濯室には靴などを洗えるようにスロップシンクを設置しています。リビングは家族が集まってもゆったりの広さ22帖としました。シューズクロークはウォークスルータイプで上着も掛けられます。LDKにはリビング用、ダイニング用、キッチン用の収納を設けています。
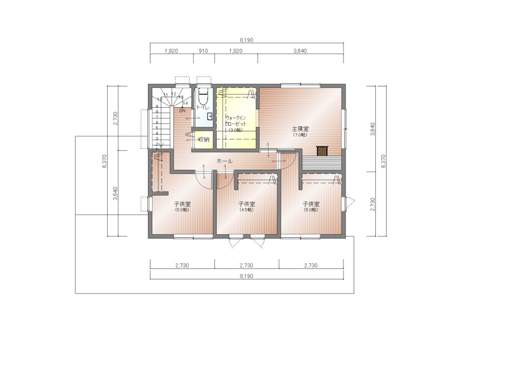
5人家族様の「自転車が置ける広い玄関」「外で洗濯しないので、広い洗濯室が欲しい」「洗面台はおしゃれにしたい」「広いテーブル、ソファを置いてもゆったりのLDKにしたい」「子供部屋は1人に1個作ってあげたい」「リモートワーク用の書斎スペースが寝室に欲しい」を形にしました。
物件概要
- 1F床面積
- 78.26㎡(23.67坪)
- 2F床面積
- 52.17㎡(15.78坪)
- 建築面積
- 134.15㎡(40.58坪)
- 延床面積
- 130.43㎡(39.45坪)
- 間取り
- 5LDK










