新春2棟同時完成見学会in柳川市三橋町中山
こちらのイベントは終了いたしました。ご来場頂きました皆様ありがとうございました。
建売住宅&注文住宅 2棟同時完成見学会開催
開催概要
| 開催日時 | 令和8年1月17日・18日、24日・25日の2週間開催 AM10時~PM5時 |
|---|---|
| 開催場所 | 柳川市三橋町中山388 柳川市立中山小学校の南西側 |
🎍あけましておめでとうございます🎍
今年もよろしくお願いします。
新春一番目のイベント案内です✨
令和8年1月17日・18日と1月24日・25日の2週間に渡り、建売&注文住宅完成見学会を2棟同時に行います!
こちらのページは注文住宅完成見学会の専用ページです。
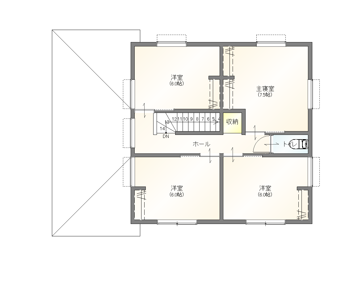
柳川市三橋町中山の分譲地内にお客様のこだわりが詰まった2階建て注文住宅が完成。
広々玄関に適材適所の収納、家事楽導線など生活に合わせた設計。
お客様の理想をカタチにした自由設計の注文住宅。
ぜひ現地でその魅力をご体験下さい。
新春特別プレゼントをご用意しております。🎁
【当日受付アンケートご記入の方】
福袋(5,000円分)プレゼント!
大人気キャラクタープレゼント(先着6組様)
【お子様連れの方】
お菓子詰め合わせプレゼント(お子様1人1個)
【ご成約特典】
太陽光発電システム約4kwプレゼント(令和8年2月末まで)
※ご見学されたい建物の予約フォームにご記入下さい。
ご予約される場合、場所が分からない等ございましたら、お気軽にお問い合わせください。
【当日会場に直接繋がる専用ダイヤル】
TEL:090ー1162ー8379
【その他お問い合わせ】
TEL:0120ー74ー0605
事前のご予約をお願いしています。
同じ時間帯に複数のご予約が入った場合は、
時間帯を変更していただくようご連絡する場合がございます。
予めご了承ください。
有限会社メイクハウス
会場地図
イベントについてのご質問はお気軽に!







